

家づくりをもっとカジュアルにシミュレーションして楽しむために生まれた、住宅エンターテイメントメディア【Dolive】
ガレージユースやカーライフを前提とした機能的なデザインのガレージウェアやファニチャーなどのさまざまなプロダクトを通して、愛車のある”ガレージ”から拡張していくライフスタイルを提案している【GORDONMILLER】
「ガレージ」に対する概念を変えていきたい、そんな想いから実現したコラボレーション住宅です。

外観写真
1.FLAT TYPE

間取り
家の真ん中に大きなガレージを配置した大胆な間取りの平屋プラン。
外観のアクセントになるだけでなく、屋内と屋外のいいとこどりをした第三の空間としてガレージを楽しめます。
隣り合わせに配置されたリビングとガレージは、ワイドな2面のサッシによって仕切られ、壁と天井を同素材で仕上げることでシームレスにつながります。


GARAGE+リビング
インダストリアルなデザインでお気に入りの家具の配置などを考えるだけでも、ワクワクしますね♪


外観写真
2.COMPACT TYPE

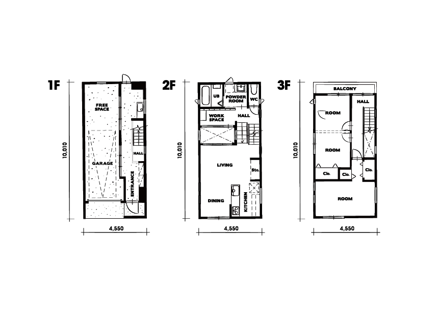
間取り
限られた敷地でも建てられるコンパクトな3階建てのプラン。都市部でも郊外でもその場の環境にマッチしながら存在感のあるデザインに。
各フロアとガレージは吹抜けでつながっていて、どこにいても家族とのつながりを感じられます。

2階のワークスペースからは直接ガレージに降りることができ、隠れ家気分も味わえます。


シンプルなアースカラーの外壁に海外のアパルトマン風格子窓が映える、ハードさと上品さを併せ持った外観は都会の風景にもよく馴染みます。

2タイプとも、家の【どこからでも】 “ガレージ”を楽しめるデザインになっていて、車やバイクをいじりたい方やアウトドアグッズの収納スペースが欲しいなど、自分や家族の希望が丸ごと叶えられます。
まるで子供のころにあこがれた秘密基地のような空間が、きっと毎日をワクワクさせくれるはずです♪

今回のTHE HOUSE GARAGE PROJECTはいかがでしたでしょうか?
もし皆さまの『好き!』に引っかかるものがありましたら、ぜひモデルハウスをご覧ください
THE HOUSE GARAGE PROJECT VR見学会のご予約はこちらから♪
⇩⇩⇩
〝 https://dev.fj-r.jp/event/hello_the-house-garage-project/ 〟
ZEROCUBEのモデルハウス見学会のご予約はこちらから!
⇩⇩⇩
〝 https://dev.fj-r.jp/event/hello_zero-cube/ 〟
どうぞお気軽にご連絡くださいませ♪
次回は『AM6』をご紹介!
お楽しみに!
